Fidelity Manufacturing
Generator Fuel Tank - 191 gallon
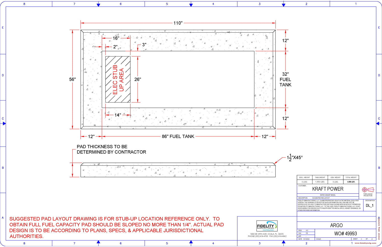
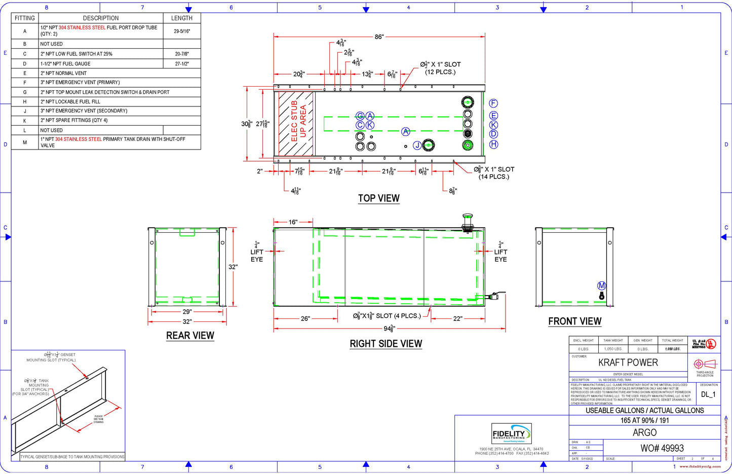
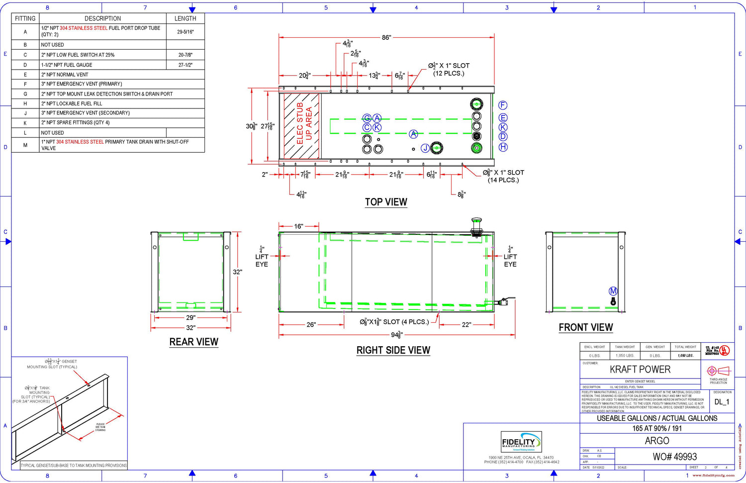
Diesel fuel tank manufactured by Fidelity Manufacturing. 165 usable gallons, 191 actual capacity, UL#142, double wall construction. Length = 86", Width = 30.375" New, never used, excellent condition. Total weight 1,050 lbs. Located in Woburn MA. Complete drawing and specifications available.
Share

